Tutorial 3: Layout an
Inverter
(The majority of
this tutorial was created by Dr. R. Jacob Baker, my PhD adviser at UNLV)
To begin, copy
tutorial_2.jelib to C:\Electric, rename it as tutorial_3.jelib.
Next
open the cell NMOS_IV. Select the nMos Node and use Ctrl+C or Edit
-> to copy the Node to the clipboard. Copying the Node will
eliminate the need for us to re-position the W and L text and select a
SPICE model.

Next
create a new cell, Cell -> New Cell (or just use Ctrl+N) called
inv_20_10 (an inverter with a PMOS having a width of 20 and an NMOS
with a width of 10) Ensure the schematic view is selected.

Next paste the
nMos Node copied above into this new cell and then fill the window
(zoom in around the added Node).

We
don’t need the symbol to show the body connection since our NMOS body
(the p-substrate or p-well) will always be at ground. With the nMos
Node selected go to Edit -> Change (or simply press C) and
change
the Node to transistor as seen below. Make sure to hit Apply then Done.

Repeat the above
set of steps for the pMos Node in the cell PMOS_IV to get the following.

Since want the
PMOS’s width to be 20 change, by editing the pMos Node’s properties, 10
to 20 as seen below.

Next turn the
grid on and add the power symbol as seen below.

Next,
with the power Node active as seen above, use Edit -> Size
->
Interactively (or just Ctrl+B) to reduce the size of the power symbol,
below.

Align the
symbols to grid and add the gnd Node as seen below.

Go ahead and
reduce the size of the gnd Node and move to align to grid as seen below.

Add
the wire Arcs to wire the inverter together. Remember to use the left
mouse button to select a port on a Node and the RIGHT mouse button to
make an Arc connection. The connection to the power Node is found in
the center of the Node.

Next
add Off-Page Nodes as seen below. These Nodes have ports on the left
and right sides (it doesn’t matter which one you connect to).

Connect wire
Arc’s to the Nodes as seen below.

Next
we want to Export the inverter’s input and output. Use Export ->
Create Export (or Ctrl+E) to export the input (select the left port on
the input side as seen below).

Repeat
for the output Off-Page Node (the right side port of the right off-page
Node). The results are seen below. Hit F5 to check the schematic for
errors.

We
are now ready to create an icon view for this schematic. Go to the menu
item View -> Make Icon View. After filling the window we get the
following.

The
icon view was added to the top right hand side of the cell. This
doesn’t look like an inverter so we’ll change it. However, before doing
so let’s click on the Explorer tab on the left and expand the inv_20_10
cell group. Notice that blue indicates an icon while, again, red a
schematic and orange a layout view.

We
need to change the icon so that it looks like an inverter. In the
schematic view an instance of the icon is placed. We can open the icon
view by double clicking on the name above or by selecting this view and
going to the menu Cell -> Down Hierarchy -> Down
Hierarchy (or
Ctrl+D) Let’s select the icon view in the drawing area and press Ctrl+D
to get the following.

To
go back up in the hierarchy we can use Ctrl+U or Cell -> Up
Hierarchy -> Up Hierarchy Press Ctrl+U now to go back up to the
inverter schematic (the only cell using the icon view) Select this view
again and then Ctrl+D to back into the icon view (knowing can use the
Explorer to move between cells too) Next select and delete the box/text
to get the following.

Select the
bottom set of items as seen below.

Rotate these
items (Ctrl+J is the fastest way) and move to get the following.

Next go to the
Component menu and select the triangle and rotate to get the following.

Rotate
the triangle and reposition the in/out items (Pin, Arc, and Text) so
you have the following. Remember the Shift+Click can be used to select
or de-select and item.

Next select the
circle and place it in the icon view.

Edit the
properties of the circle (Ctrl+I) to change x and y sizes to 1.
Reposition the circle as seen below.

Our icon view is
now complete. Press Ctrl+U to go back up the schematic view of the
inverter (or use the Explorer).

Let’s simulate
the operation of this inverter. Create a schematic call inverter_sim.

Next,
turn off the grid and then place the icon into this schematic. This can
be done in two ways. In the Component menu select Cell ->
inv_20_10
or in the Explorer click, and hold, on the cell you want to instantiate
and drag it into the drawing area. Use either method to place the
inverter icon as seen below.

Add wire Arcs to
the inverter’s input and output. Next, add SPICE code (under the Misc.
arrowhead) to get the following.

Double
click on the Arcs (or select and use Ctrl+I) to label the wires in and
out as seen below. Also, edit the SPICE text so that the text seen
below is used (set to Multi-line text).

Using
the menu item Tools -> Simulation (Spice) -> Write Spice
Deck…
gives the following LTspice output (after selecting the in and out
voltages).

Let’s lay out
the inverter next. Create a layout view for the inverter.

Now
there are three views in the inv_20_10 cell group: schematic, icon, and
layout Add the following Nodes to this cell. Annotation text was added
to help know what to place and where.

Next
select the pMos Node and set its SPICE model to PMOS (see Tutorial 2 if
you don’t remember how to do this) and set the width to 20. Next select
the nMos Node and set its SPICE model to NMOS and set its width to 10.
Keep both MOSFETs lengths at 2.

Next set the
x-size of both pAct Nodes to 20 and both nAct Nodes to 10. Further set
pWell and nWell x-sizes to 20.

Next add Arcs
between transistors and active areas as seen below.

Move the active
areas adjacent to the transistors. Move Annotation text for labeling
too.

Let’s
delete the Annotation text. Next rotate the transistors and active
areas and move the devices into the positions seen below. DRC the
layout to ensure no errors are present.

Next
connect: the two poly gates together, the metal on the right of the
devices together, and the metals on the left of the transistors up or
down to the well connections as seen below. DRC your design.

Add a poly1 to
metal1 contact on the left and a metal1 Pin on the right as seen below.

Connect
the Pin and Contact up as seen below. If the width of the poly1 isn’t 2
after the Arc is placed simply select the Arc and change its width to
2. DRC the layout to ensure no errors.

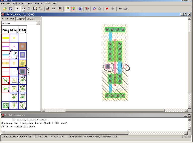
We are now ready
to Export in, out, gnd, and vdd. Select the pWell Node and then hit
Ctrl+E as seen below.

Select
this gnd Export and change its Text size to 5 as seen below. Remember
that using the Crtl+click is useful for cycling through the selections.
Also remember that both gnd and vdd exports must be lowercase to
properly NCC with the corresponding power and ground schematic Nodes.

Next,
select the metal1 Pin we placed a moment ago (you can only export
Nodes, not Arcs, and the Pin is a Node). Export this Pin as out to
match the schematic view. Again, change the size of the Text to 5 as
seen below.

Repeat for vdd
and in then DRC, NCC, and Well Check the layout. There shouldn’t be any
errors.

To
end this tutorial let’s simulate this layout. Create a cell named
inverter_sim with a layout view. In the Explorer Drag inv_20_10{lay}
over into the drawing area as seen below.

Notice
how we can’t see what’s inside the cell but we can see the Exports.
With the cell selected use the eye and closed eye on the right side of
the menu to toggle between showing and not showing the contents of the
cell. With the cell selected edit the edit the cells properties
(Ctrl+I), below.

Notice
that you can de-select the “Easy to Select” feature and make the cell
hard to select. This is useful when the layout is complicated. If a
cell or layout is hard to select you can toggle the “Special Select”
cursor (circled on the menu). Using Pure layers, see menu item under
the left Components menu tab, requires the use of Special Select. Let’s
connect metal wires to the cell as seen below.

Next
edit the properties of the wire Arcs so that they correspond to the
names in the inverter_sim{sch}. Next copy the SPICE code from
inverter_sim{sch} into this layout view of the cell. Change the size of
the SPICE code to 3 as seen below.

It’s
tough to see the wire Arc names so change their size to 5 (again
Ctrl+click and Shift+click are always useful) DRC, NCC, and Well Check
the cell inverter_sim. We get errors for both the NCC and the Well
Checks.

The
problem lies in the fact that since we used vdd and gnd symbols in the
schematic we have to export them in the layout. We can’t simply name
the Arcs vdd and gnd like we did above. Delete the vdd and gnd names
from the Arcs. Next Export the left Pins on the top and bottom metal1
Arcs with names vdd and gnd as seen below (change text size to 5 too).
Again, if you don’t use lowercase vdd and gnd for the Exports the
layout and schematic won’t NCC without errors (and the layout won’t
Well Check correctly) Notice how the Exports could easily be mistaken
for naming of Arcs. It’s important to understand what we just did.

Now
the two cells DRC, NCC, and Well Check without errors. Further, the
layout view of this cell can now be simulated using SPICE (try this
now). This is the end of the third tutorial.